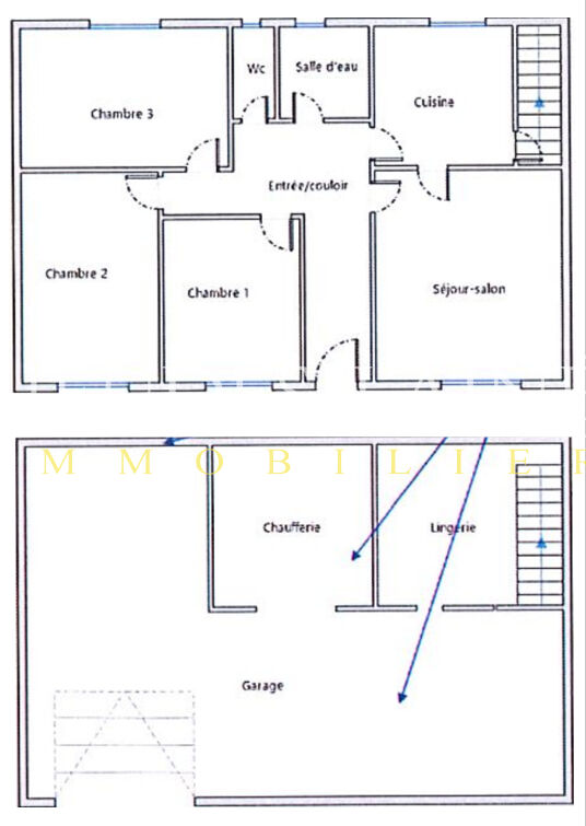
Maison 4 pièce(s) 71 m2 - ST MARTIN DE LANDELLES
-

71 m² -

2 -

1 -

3790 m²
