Descriptif

Appartement F3 - AVRANCHES

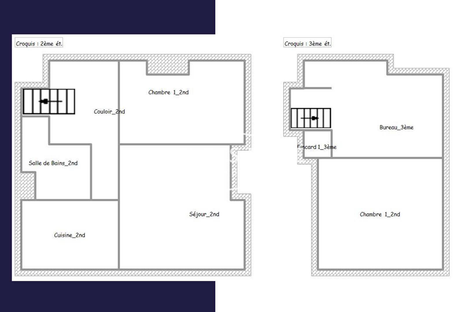
Idéalement situé en plein coeur du centre-ville d'Avranches, venez découvrir ce charmant appartement de type F3 en duplex, niché au 2ème étage d'une petite résidence calme (sans ascenseur).

D'une surface habitable de 66 m², il est fonctionnel et bien agencé, il se compose comme suit :

Au premier niveau :
- Une pièce de vie
- Une chambre
- Une cuisine séparée
- Une salle d'eau,
- Un WC indépendant
- Un dégagement desservant l'ensemble.

Sous les combles :
- Une mezzanine idéale pour un bureau.
- Une seconde chambre mansardée.

Une cave au sous-sol

Emplacement central à proximité immédiate des commerces, écoles, transports et services.

Pour plus d'informations, vous pouvez nous contacter au 02.33.58.01.07.

Les informations sur les risques auxquels ce bien est exposé sont disponibles sur le site Géorisques : www. georisques.gouv.fr

Copropriété de 22 lots.
Charges annuelles : 1146.12 euros.


Informations

  • Référence : 7804
  • Ville : avranches
  • Transaction : Vente
  • Type de bien : Appartement
  • Prix : 160 000 €
  • Copropriété - nombres de lots : 22
  • Surface : 65.68 m2
  • Etage du bien : 2
  • Nbr d'étages : 3
  • Nbr de pièces : 3
  • Nbr de chambres : 2
  • Nbr SDB : 1
  • Cuisine : équipée
  • Chauffage : individuel gaz radiateur


Performance énergétique (en KWh/m2/an)
Dpe
Performance climatique (en Kg éq CO2/m2/an)
Ges
Montant estimé des dépenses annuelles d’énergie pour un usage standard : année de référence 2021 - de 810€ à 1180€
Nous contacter pour ce bien
Heudes-Lainé Immobilier

3 rue Général de Gaulle
50300 AVRANCHES

Biens similaires
Appartement F4 - AVRANCHES

  • 98.91 m²

  • 2

  • 1
Appartement F4 à rénover - AVRANCHES

  • 93.68 m²

  • 3

  • 1
Appartement Saint James 2 pièce(s) 48 m2

  • 48 m²

  • 1

  • 1
Nous situer
Heudes-Lainé Immobilier | Agence immobilière Avranches
Heudes-Lainé Immobilier
Avranches

3 rue Général de Gaulle
50300 AVRANCHES

02 33 58 01 07
Plus d'informations
Heudes-Lainé Immobilier | Agence immobilière Saint Pair sur Mer
Heudes-Lainé Immobilier
Saint Pair sur Mer

270 rue Tombelaine
50380 SAINT PAIR SUR MER

02 33 58 55 51
Plus d'informations
Heudes-Lainé Immobilier | Agence immobilière Saint-Hilaire-du-Harcouët
Heudes-Lainé Immobilier
Saint-Hilaire-du-Harcouët

25 Avenue du Maréchal Leclerc
50600 Saint-Hilaire-du-Harcouët

02 33 68 75 83
Plus d'informations
Heudes-Lainé Immobilier | Agence immobilière Saint James
Heudes-Lainé Immobilier
Saint James

7 avenue du général De Gaulle
50240 Saint James

02 33 89 55 10
Plus d'informations
Heudes-Lainé Immobilier