Descriptif

Appartement F2 - AVRANCHES

En collaboration avec le promoteur CREADIMM, l'Agence HEUDES-LAINÉ IMMOBILIER vous propose au centre-ville d'AVRANCHES, dans un bâtiment entièrement rénové répondant aux dernières normes environnementales, un appartement neuf de type T1bis personnalisable en fonction de vos attentes (finitions peintures, sols, crédences ...). La Résidence sera équipée d'un ascenseur et répondra aux normes PMR.

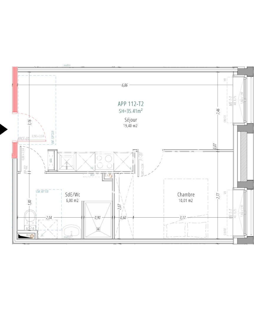
Cet appartement d'une surface de 35.41 m² se compose d'un séjour avec coin cuisine de 19.40m², une chambre et une salle d'eau avec WC.

Chauffage et eau-chaude par chauffage urbain au bois.

D'autres appartements neufs du studio au T3 sont encore disponibles, n'hésitez pas à nous contacter pour plus d'informations au 02.33.58.01.07.

Les informations sur les risques auxquels ce bien est exposé sont disponibles sur le site Géorisques : www. georisques.gouv.fr
Copropriété de 28 lots.


Informations

  • Référence : 7033
  • Ville : avranches
  • Transaction : Vente
  • Type de bien : Appartement
  • Prix : 130 800 €
  • Copropriété - nombres de lots : 28
  • Surface : 35.41 m2
  • Etage du bien : 1
  • Nbr d'étages : 3
  • Nbr de pièces : 2
  • Nbr de chambres : 1
  • Chauffage : collectif


Bien non soumis au DPE

Nous contacter pour ce bien
Heudes-Lainé Immobilier

3 rue Général de Gaulle
50300 AVRANCHES

Biens similaires
Appartement T4 - Avranches, proche Place Patton -

  • 68.47 m²

  • 2

  • 1

  • 4951 m²
Nous situer
Heudes-Lainé Immobilier | Agence immobilière Avranches
Heudes-Lainé Immobilier
Avranches

3 rue Général de Gaulle
50300 AVRANCHES

02 33 58 01 07
Plus d'informations
Heudes-Lainé Immobilier | Agence immobilière Saint Pair sur Mer
Heudes-Lainé Immobilier
Saint Pair sur Mer

270 rue Tombelaine
50380 SAINT PAIR SUR MER

02 33 58 55 51
Plus d'informations
Heudes-Lainé Immobilier | Agence immobilière Saint-Hilaire-du-Harcouët
Heudes-Lainé Immobilier
Saint-Hilaire-du-Harcouët

25 Avenue du Maréchal Leclerc
50600 Saint-Hilaire-du-Harcouët

02 33 68 75 83
Plus d'informations
Heudes-Lainé Immobilier | Agence immobilière Saint James
Heudes-Lainé Immobilier
Saint James

7 avenue du général De Gaulle
50240 Saint James

02 33 89 55 10
Plus d'informations
Heudes-Lainé Immobilier